Mieszkanie nad Jeziorem z Możliwością dokupienia miejsca Garażowego / Cena do Negocjacji.
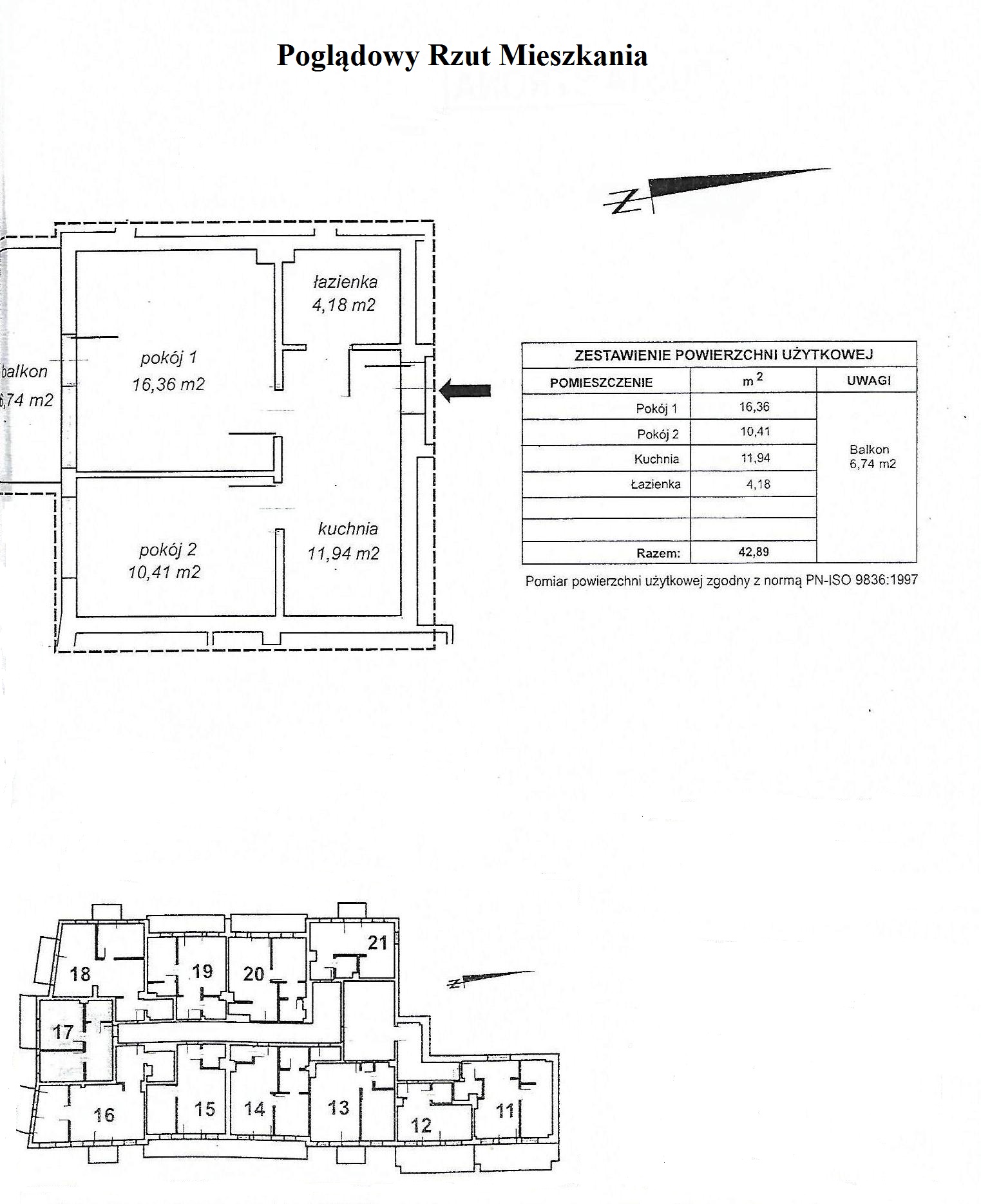
Oferujemy na sprzedaż lokal mieszkalny stanowiący odrębną nieruchomość położony na pierwszym piętrze w wielorodzinnym budynku mieszkalnym przy ul. Kolejowej Lokal mieszkalny o powierzchni użytkowej 42,89 m2 składa się z dwóch pokoi, kuchni, łazienki. Mieszkanie z zamontowaną klimatyzacją usytuowane od południowej części budynku z rozciągającą się panoramą na jezioro Niegocin. Budynek mieszkalny z windą wybudowany w 2016r. W pobliżu mieszkania znajduje się Pasaż Portowy z licznymi placówkami usługowo – handlowymi, przedszkole, plac zabaw, szkoła, apteka, plaża miejska, jezioro Niegocin, port Ekomarina, Kanał Łuczański. Do mieszkania przynależy udział w częściach wspólnych nieruchomości oraz gruncie pod budynkiem.
Możliwość dokupienia za odrębną cenę 50.000,00 zł miejsca parkingowego w podziemnej hali garażowej.
Informacje dodatkowe:
Opłaty Eksploatacyjne:
miesięczny czynsz za lokal mieszkalny za 2 osoby w kwocie 482,00 zł ( wywóz nieczystości, zaliczka na koszty remontów, zaliczka na centralne ogrzewanie, odprowadzenie ścieków, zimna woda, zaliczka na koszty utrzymania części wspólnych nieruchomości, wynagrodzenie zarządcy, podgrzanie wody) dodatkowe opłaty to rachunki za energię według zużycia.
Miesięczny czynsz za miejsce garażowe w kwocie 124,56 zł (zaliczka na koszty utrzymania części wspólnych nieruchomości, wynagrodzenie zarządcy, zaliczka na koszty remontów, eksploatacja – hala garażowa, wynagrodzenie zarządcy – hala garażowa)
Zarządca Budynku: Wspólnota Mieszkaniowa Administrator Spółka z.o.o.
Media: Wodociąg miejski, kanalizacja miejska, prąd.
Ogrzewanie: miejskie.
Stan Prawny: Wyodrębniona własność z Księgą Wieczystą.














